Casa singola in Vendita a Castelfranco di Sotto
Zona: Orentano
Classe energetica
Pregiata Villa singola, parzialmente ristrutturara, divisa in due unità indipendenti, oltre ad una dependence, in Vendita in verde e tranquillo contesto di Orentano.
------ Ideale per più nuclei familiari ------
La proprietà risale agli anni 900' ed il taglio, le dimensioni e le caratteristiche della villa sono tipiche del fascino dello stile liberty.
La superficie della VILLA è di 253 mq e si sviluppa su due livelli.
Quella del TERRATETTO è di 115 mq , anch' esso su due livelli
e quella della DEPENDENCE è di 140 mq netti.
Il terreno, di circa 4.000 mq le conferisce privacy e riservatezza.
Si può accedere alla proprietà da due ingressi ed è possibile costituirne un terzo.
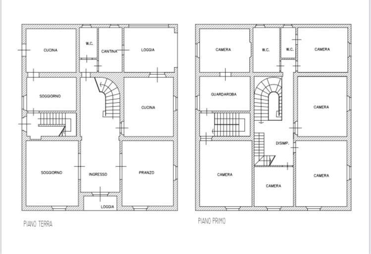
°° LA COMPOSIZIONE DELLA VILLA: composta da 10 vani,
al piano terra troviamo un ampio ingresso con vista verso una maestosa scala in marmo orginale, una sala alla sinistra ampia e luminosa ed una sala pranzo con aperture ampie e molto luminose alla destra, proseguendo una grande cucina, con soffitto a volte, in cui è presente un camino, tale stanza affraccia su un bellissimo loggiato, poi a seguire il bagno di servizio ed il locale lavanderia; al piano primo vi è la camera patronale con bagno privato, altre due camere matrimoniali , bagno principale ed uno studio (o cameretta); inoltre è presente una mansarda praticabile.
L' edificio si distingue per le eleganti forme di gusto neoclassico. Degna di nota la scala signorile che collega il piano terra con i piani alti, di grande impatto che esalta la signorilità tipica della villa.
I lavori di ristrutturazione che sono stati eseguiti sono:
- l' intera FONDAZIONE con micropali profondi 10 metri ed iglu;
- la stesura del PRIMO MASSETTO;
- il passaggio delle TRACCE DI TUTTI GLI IMPIANTI, specificando che rimangono in dotazione i PANNELLI RADIANTI per il riscaldamento a pavimento;
- il rifacimento completo del TETTO.
- intonaco esterno.
Rimangono in dotazione i pavimenti, i rivestimenti e sanitari dei bagni e i battiscopa.
°°LA COMPOSIZIONE DEL TERRATETTO: adiacente alla villa, è composto al piano terra da ingresso in soggiorno, cucina, bagno (da realizzare), e al piano primo da tre grandi camere. Questa abitazione potrebbe essere suddivisa in due unità: un bilocale al piano terra ed un trilocale al piano primo.
Si trova allo stato grezzo, I lavori di ristrutturazione che vi sono stati eseguiti sono le fondazioni, l' intonaco esterno ed il tetto.
°°COMPOSIZIONE DELLA DEPENDENCE: al piano terra troviamo il soggiorno-cucina, una grande camera; al piano primo un ampio vano.
GARAGE adiacente di circa 30mq.
Tale struttura era un ex fienile ed è stata completamente ristrutturata, dalle fondazioni, al tetto e agli impianti. Catastamente attualmente risulta un C2 ovvero pertinenza dell' abitazione, ma è POSSIBILE effettuare CAMBIO D' USO del fabbricato pertinenziale, IN CIVILE ABITAZIONE mediante opere per adeguamento ai parametri in materia di risparmio energetico, acustica e collaudo strutturale e previo corresponsione di oneri di urbanizzazione al Comune.
L' intera proprietà si presta per due o tre nuclei familiari. Su richiesta è possibile ricevere un progetto per suddividere L' intera proprietà in più unità abitative.
La struttutura può essere utilizzata anche come attività turistica ricettiva.
L' agenzia immobiliare Futurcasa di Altopascio è a disposizione per fornire ulteriori informazioni o per fissare visite ai seguenti numeri:
TEL. 0583.269643 - 339.7289577.
IMMOBILIARE Futurcasa, Via Firenze, N° 16 ALTOPASCIO.
Se desidera ricevere altre proposte simili invii una mail a futurcasa@live.it. Associati F.I.M.A.A.
IL NOSTRO MODO DI LAVORARE:
LE VISITE SONO SENZA IMPEGNO, FORNIAMO TUTTI I DETTAGLI DELL' IMMOBILE CON CHIAREZZA E TRASPARENZA PRIMA DI FARLO VISIONARE,
ESIBIAMO TUTTI I DOCUMENTI RELATIVI ALL IMMOBILE VISIONATO (PLANIMETRIA , VISURA CATASTALE E ATTO DI PROVENIENZA) DOCUMENTI CHE ABBIAMO BEN VERIFICATO PRIMA DI METTERE IN PUBBLICITA' L' IMMOBILE;
PER SCELTA ( E NON SECONDO LA CONSUETUDINE LOCALE) PERCEPIAMO LA NOSTRA PROVVOGIONE (CHE PER TRASPARENZA INFORMIAMO ESSERE DEL 2,5% PIU' IVA sul prezzo finale concordato tra le parti) SOLO AL MOMENTO DEL ROGITO NOTARILE , ALLA CONCLUSIONE DELL' AFFARE;
GARANTIAMO MASSIMA IMPARZILITA' TRA LE PARTI (VENDITORE - ACQUIRENTE) ;
LE NOSTRE PROPOSTE D' ACQUISTO GARANTISCONO AL 100% CHI ACQUISTA, IN QUANTO TENGONO IMPEGNATO L' IMMOBILE MA NON PREVEDONO PASSAGGIO DI DENARO FINO A QUANDO NON SIANO STATI ESEGUITI GLI OPPORTUNI CONTROLLI DAL TECNICO DI PARTE DELLA PARTE ACQUIRENTE E NON SIA STATO APPROVATO L' EVENTUALE MUTUO .
Per maggiori informazioni o per visionare l' immobile contatti: Immobiliare Futurcasa di Altopascio, Via Firenze, N° 16.
Precious single villa, partially renovated, divided into two independent units, as well as a dependence, for sale in the green and peaceful setting of Orentano. The property dates back to the 1900s and the layout, dimensions and characteristics of the villa are typical of the charm of the Art Nouveau style. The surface of the VILLA is 253 m2 and is spread over two levels. That of the TERRATETTO is 115 m2, also on two levels and that of the DEPENDENCE is 140 m2 net. The land, of approximately 4,000 m2, gives it privacy and confidentiality. The property can be accessed from two entrances and it is possible to build a third. °° THE COMPOSITION OF THE VILLA: on the ground floor we find a large entrance with a view towards a majestic original marble staircase, a large and bright room on the left and a dining room with large and very bright openings on the right, continuing a large kitchen, with vaulted ceiling, in which there is a fireplace, this room overlooks a beautiful loggia, followed by the service bathroom and the laundry room; on the first floor there is the master bedroom with private bathroom, two other double bedrooms, main bathroom and a study (or bedroom); There is also a practicable attic. The renovation works that concern it are: - the entire FOUNDATION with 10 meter deep micropiles and iglu; - the laying of the FIRST SCREED; - the passage of the TRACES OF ALL SYSTEMS, specifying that the RADIANT PANELS for underfloor heating remain supplied; - the complete renovation of the ROOF. - external plaster. The floors and walls of the bathrooms remain supplied. °°THE COMPOSITION OF THE TOWN: adjacent to the villa, it is composed on the ground floor of an entrance into the living room, kitchen, bathroom (to be built), and on the first floor of three large bedrooms. This house could be divided into two units: a two-room apartment on the ground floor and a three-room apartment on the first floor. The renovation works that interest him are the foundations, the external plaster and the roof. °°COMPOSITION OF THE DEPENDENCE: on the ground floor we find the living room-kitchen, a large bedroom; on the first floor a large room. Adjacent GARAGE of approximately 30m2. This structure was a former barn and has been completely renovated, from the foundations, to the roof and the systems. The land registry currently shows a C2 or appurtenance of the home. The entire property is suitable for two or three families. Upon request it is possible to receive a project to divide the villa into several residential units.
Ultimo aggiornamento 05-01-2026




























































